RELUXIA両国 墨田区緑[マンション]

RELUXIA両国 墨田区緑[マンション]

マンション[墨田区緑]

安心の仲介手数料無料★恵比寿をはじめ東京23区のお部屋をお得に探すなら「明光トレーディングの賃貸」へ!

  • 03-5422-6146
  • 10:00〜18:30 / 定休日:火曜日・水曜日

棟詳細

RELUXIA両国 墨田区緑 マンション

RELUXIA両国 墨田区緑[マンション]の棟詳細ページです。

物件種別:マンション

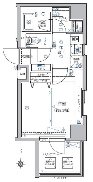
間取り(面積)

1K

( 28.5㎡)

賃料

11.3万円

交通: 都営大江戸線 両国駅 徒歩5分

所在地: 墨田区緑

築年月: 2021年2月

管理費等の月次金がかかることがあります。詳細は各部屋のページでご確認ください。

ポイント

★仲介手数料無料・インターネット(無料)・VR内見可能・便利な住居内Wi-Fi環境・IoT機器設置済み★都営大江戸線「両国」駅から徒歩5分!JR中央線・総武線『両国』駅も利用可能な好立地♪

  • その他
  • その他
  • キッチン
  • 洗面所
  • 洋室

  • ※代表的なお部屋の写真と物件情報になります。タイプによっては一部仕様・眺望等が異なる場合があります。
  • ※お部屋により現況と異なる場合は現況を優先いたします。



所在地 東京都墨田区緑1丁目6-4 周辺地図
交通 都営大江戸線 両国駅 徒歩5分
中央・総武線各停 両国駅 徒歩9分
都営新宿線 森下(東京)駅 徒歩8分
賃料 11.3万円
築年月 2021年2月 (築4年)
建物構造 鉄筋コンクリート 登録空きフロア計 28.5㎡ (8.62坪)
総戸数 25戸 規模 9階建/ -



所在階 賃料 管理費/共益費 敷金/礼金 間取り 専有面積 詳細

7階 11.3万円

10000円

/ 0円

1ヶ月

/ 1ヶ月

1K

28.5㎡

(8.62坪)

RELUXIA両国 の詳細ページ


  • ※間取りの「S」はサービスルーム(納戸)です。

ホームへ戻る